Чим AvisБТІ цікава для вас?
AvisБТІ – це професійна програма для креслення, як наприклад, AutoCAD. Але на підготовці планів її роль не закінчується. Відбудоване креслення – це не просто картинка, а сукупність об’єктів зі своїми властивостями та характеристиками, проаналізувавши які програма видає готові відомості та журнали, що повністю відповідають українському законодавству.

Використовуйте AvisБТІ
та готуйте техпаспорти швидко та професійно
Інтелектуальна побудова
Для побудови поверхових планів використовуються готові конструктивні елементи (стіни, двері, вікна, прорізи, арки), які інтелектуально взаємодіють між собою (однотипні стіни об’єднуються, двері/вікна вбудовуються в стіни)
Спробуйте AvisБТІ безкоштовно, без обмежень, на 30 днів
Робота з вихідними даними
- Стандартна процедура креслення планів робиться за результатами польових вимірів (ескізів та абрисів)
- Є в наявності сканкопії техпаспорту? Їх можна використовувати як підкладку для швидкої векторизації
- Маєте креслення в Автокаді? AvisБТІ їх також відкриває як підкладку для подальшого проектування
- Землевпорядники/геодезисти дають обмінні файли IN4/XML або файли ArcGIS/MapInfo? Імпортуйте межі і отримуйте точно обраховані угіддя та ділянку
Механізми, що полегшують роботу
Полегшена побудова та оформлення планів, пов’язана зі створенням об’єктів, розпізнаванням приміщень, визначенням формул, розміщенням позначок, допомагає швидко та зручно створити плани
Бібліотеки на всі випадки
Широкий вибір бібліотек елементів інтер’єру (печі, плити, димоходи, сантехніка), умовних знаків 1:500 (паркани, колодязі, замощення, будівлі, тощо), матеріалів будівель та споруд дозволяє зосередитися на описі об’єктів, а не виконанні безлічі одноманітних дій
Удосконалений друк планів
Потужний редактор переддрукарської підготовки дозволяє отримати план будь-якого оформлення та розміру (до А0).
У постачання програму включено понад 100 різних шаблонів під усі види об’єктів нерухомості, які можна доповнювати та змінювати самостійно
Опис об’єктів
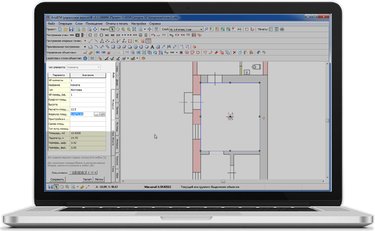
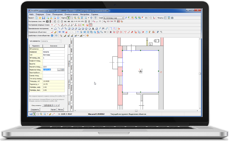
Всі конструктивні елементи на поверховому плані мають властивості, при зміні яких перемальовується сам елемент. Так двері легко перетворюються на проріз без повторної побудови, а стіна змінює матеріал.
Кімнати/приміщення мають свої характеристики, проаналізувавши які формується Експлікація з автоматичним угрупуванням по квартирах та поверхах
На схемі ділянки проектант вказує об’єкти інвентаризації (будівлі та споруди) з напівавтоматичним занесенням розрахункових показників та зручним заповненням матеріалів для Характеристики
